NEW
茨木市北春日丘2丁目
| 所在地 | 大阪府茨木市北春日丘2丁目 |
|---|---|
| 交通 | JR東海道・山陽本線茨木駅 バス(翠瑚園 乗7分 停歩4分) |
| 価格 | 2,880万円 |
|---|
| 物件種別 | 中古戸建 中古 |
|---|---|
| 築年月 | 1976/5 |
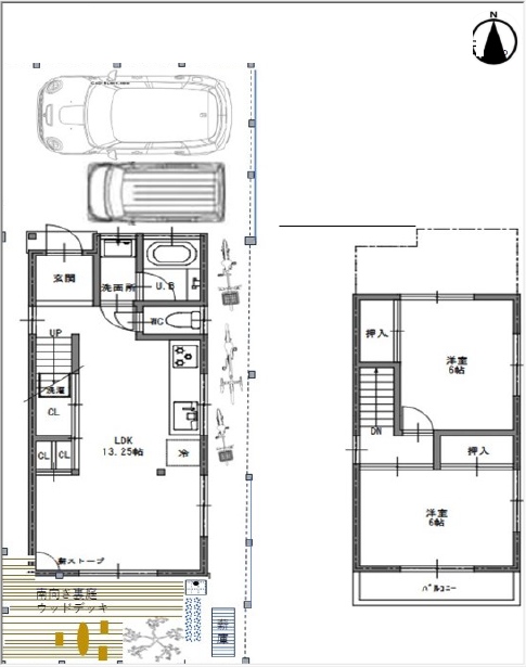
| 間取 | 2LDK |
| 面積 | 58.37m² |
| 土地 | 111.96m² |
| 構造 | 木造 |
| 階数 | 地上2階 |
| 物件番号 | 66773045 |
| 掲載期限日 | - |
| 土地面積33.86坪 南向き 採光・通風良好 四季を感じれる紅葉・コナラのお庭 令和4年7月リノベーション済●屋根・外壁全面●システムキッチン(食洗機付)●浴槽(浴室乾燥機付)●温水洗浄便座付トイレ●洗面(タイル)●薪ストーブ●薪小屋●ウッドデッキ●内装スイス漆喰●無拓フロアー(自然塗料仕上)●アルデ空気清浄機●ガス給湯器新規等多数 耐震補強あり 駐車2台可(車種による) 即入居可 ●住宅ローンお任せ下さい。(自営業・派遣社員・過去に住宅ローンが組めなかった方など) ●下記キャンペーン実施中 ①当社、《手数料》 キャンペーン実施中(弊社ホームページに多数あります。) ②《買い取り》 キャンペーン実施中 詳しくはお問い合わせください。 | |
間取り・写真







画像をクリックすると左に大きく表示されます







物件詳細情報
| 価格 | 2,880万円 | 間取 | 2LDK |
|---|---|---|---|
| 物件種別 | 中古戸建 | ||
| 所在地 | 大阪府茨木市北春日丘2丁目 茨木市北春日丘2丁目 |
||
| 交通 | JR東海道・山陽本線茨木駅 バス(翠瑚園 乗7分 停歩4分) |
||
| 築年月 | 1976/5 | 新築/中古 | 中古 |
| 建物面積 | 58.37m² | 計測方式 | 壁芯 |
| バルコニー | 向き | ||
| 建物階数 | 地上2階 | 部屋階数 | |
| 建物構造 | 木造 | ||
| 駐車場 | 駐車場付き | 取引態様 | 仲介 |
| 引渡/入居時期 | 即時 | 現況 | 空家 |
| 地目 | 宅地 | 用途地域 | 第一種低層住居専 |
| 都市計画 | 市街化区域 | 地勢 | 平坦 |
| 土地面積 | 111.96m² | 土地面積計測方式 | 公簿 |
| 建ぺい率 | 50% | 容積率 | 100% |
| 土地権利 | 所有権 | 接道状況 | |
| 接道方向1 | 北 | 接道間口1 | |
| 接道種別1 | 接道幅員1 | 4m | |
| 接道方向2 | 北西 | 接道間口2 | |
| 接道種別2 | 接道幅員2 | 4m | |
| 周辺環境 |
西小学校 西陵中学校 |
||
| 設備・条件 | 土地面積33.86坪 南向き 採光・通風良好 四季を感じれる紅葉・コナラのお庭 令和4年7月リノベーション済●屋根・外壁全面●システムキッチン(食洗機付)●浴槽(浴室乾燥機付)●温水洗浄便座付トイレ●洗面(タイル)●薪ストーブ●薪小屋●ウッドデッキ●内装スイス漆喰●無拓フロアー(自然塗料仕上)●アルデ空気清浄機●ガス給湯器新規等多数 耐震補強あり 駐車2台可(車種による) 即入居可 ●住宅ローンお任せ下さい。(自営業・派遣社員・過去に住宅ローンが組めなかった方など) ●下記キャンペーン実施中 ①当社、《手数料》 キャンペーン実施中(弊社ホームページに多数あります。) ②《買い取り》 キャンペーン実施中 詳しくはお問い合わせください。 | ||
| 物件番号 | 66773045 | ||
| 自社物 | 状態 | 売出中 | |
| ※物件掲載内容と現況に相違がある場合は現況を優先と致します。 | |||
周辺情報
Loading...
