NEW
茨木市北春日丘2丁目
| 所在地 | 大阪府茨木市北春日丘2丁目 |
|---|---|
| 交通 | JR東海道・山陽本線茨木駅 バス(緑ヶ丘 乗12分 停歩3分) 大阪モノレール彩都線公園東口駅 徒歩24分 |
| 価格 | 3,490万円 |
|---|
| 物件種別 | 中古マンション 中古 |
|---|---|
| 築年月 | 1982/6 |
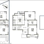
| 間取 | 5SDK |
| 面積 | 155.84m² |
| 土地 | 152.43m² |
| 構造 | RC |
| 階数 | 地上2階 |
| 物件番号 | 2324032 |
| 掲載期限日 | - |
| 都市ガス公営水道排水下水広い屋上は眺望良好です 1階和室に堀ごたつあり 収納スペース多数あり 5SDK 全居室8帖以上 掘込車庫に倉庫スペースあり 堀込車庫高さ制限あり(1750mm以下) 即入居可 ●住宅ローンお任せ下さい。(自営業・派遣社員・過去に住宅ローンが組めなかった方など) ●下記キャンペーン実施中 ①当社、《手数料》 キャンペーン実施中(弊社ホームページに多数あります。) ②《買い取り》 キャンペーン実施中 詳しくはお問い合わせください。 | |
間取り・写真


画像をクリックすると左に大きく表示されます


物件詳細情報
| 価格 | 3,490万円 | 間取 | 5SDK |
|---|---|---|---|
| 物件種別 | 中古マンション | ||
| 所在地 | 大阪府茨木市北春日丘2丁目 茨木市北春日丘2丁目 |
||
| 交通 | JR東海道・山陽本線茨木駅 バス(緑ヶ丘 乗12分 停歩3分) 大阪モノレール彩都線公園東口駅 徒歩24分 |
||
| 築年月 | 1982/6 | 新築/中古 | 中古 |
| 建物面積 | 155.84m² | 計測方式 | 壁芯 |
| バルコニー | 向き | ||
| 建物階数 | 地上2階 | 部屋階数 | |
| 建物構造 | RC | ||
| 駐車場 | 駐車場付き | 取引態様 | 仲介 |
| 引渡/入居時期 | 即時 | 現況 | 空家 |
| 地目 | 宅地 | 用途地域 | 第一種低層住居専 |
| 都市計画 | 市街化区域 | 地勢 | 高台 |
| 土地面積 | 152.43m² | 土地面積計測方式 | 公簿 |
| 建ぺい率 | 50% | 容積率 | 100% |
| 土地権利 | 所有権 | 接道状況 | |
| 接道方向1 | 西 | 接道間口1 | |
| 接道種別1 | 接道幅員1 | 約4.8m | |
| 周辺環境 |
西小学校 西陵中学校 |
||
| 設備・条件 | 都市ガス公営水道排水下水広い屋上は眺望良好です 1階和室に堀ごたつあり 収納スペース多数あり 5SDK 全居室8帖以上 掘込車庫に倉庫スペースあり 堀込車庫高さ制限あり(1750mm以下) 即入居可 ●住宅ローンお任せ下さい。(自営業・派遣社員・過去に住宅ローンが組めなかった方など) ●下記キャンペーン実施中 ①当社、《手数料》 キャンペーン実施中(弊社ホームページに多数あります。) ②《買い取り》 キャンペーン実施中 詳しくはお問い合わせください。 | ||
| 物件番号 | 2324032 | ||
| 自社物 | 状態 | 売出中 | |
| ※物件掲載内容と現況に相違がある場合は現況を優先と致します。 | |||
周辺情報
Loading...
