NEW
八幡市橋本栗ケ谷
| 所在地 | 京都府八幡市橋本栗ケ谷 |
|---|---|
| 交通 | 京阪本線橋本駅 徒歩4分 |
| 価格 | 970万円 |
|---|
| 物件種別 | 中古戸建 中古 |
|---|---|
| 築年月 | 1968/7 |
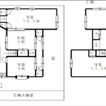
| 間取 | 6DK |
| 面積 | 158.60m² |
| 土地 | 163.08m² |
| 構造 | 木造 |
| 階数 | 地上2階 |
| 物件番号 | 68487801 |
| 掲載期限日 | - |
| 都市ガス公営水道排水下水土地約49.33坪 京阪「橋本」駅まで徒歩4分 ゆとりの6DK 全居室6帖以上 トイレ2ヶ所 1坪サイズのお風呂 家庭菜園も楽しめます 即入居可 ●住宅ローンお任せ下さい。(自営可業・派遣社員・過去に住宅ローンが組めなかった方など) ●下記キャンペーン実施中 ①当社、《手数料》 キャンペーン実施中(弊社ホームページに多数あります。) ②《買い取り》 キャンペーン実施中 詳しくはお問い合わせください。 | |
間取り・写真


画像をクリックすると左に大きく表示されます


物件詳細情報
| 価格 | 970万円 | 間取 | 6DK |
|---|---|---|---|
| 物件種別 | 中古戸建 | ||
| 所在地 | 京都府八幡市橋本栗ケ谷 八幡市橋本栗ケ谷 |
||
| 交通 | 京阪本線橋本駅 徒歩4分 | ||
| 築年月 | 1968/7 | 新築/中古 | 中古 |
| 建物面積 | 158.60m² | 計測方式 | 壁芯 |
| バルコニー | 向き | ||
| 建物階数 | 地上2階 | 部屋階数 | |
| 建物構造 | 木造 | ||
| 駐車場 | 取引態様 | 仲介 | |
| 引渡/入居時期 | 即時 | 現況 | 空家 |
| 地目 | 宅地 | 用途地域 | 第一種低層住居専 |
| 都市計画 | 市街化区域 | 地勢 | |
| 土地面積 | 163.08m² | 土地面積計測方式 | 公簿 |
| 建ぺい率 | 60% | 容積率 | 100% |
| 土地権利 | 所有権 | 接道状況 | |
| 接道方向1 | 西 | 接道間口1 | |
| 接道種別1 | 接道幅員1 | 約4m | |
| 周辺環境 |
橋本小学校 男山第三中学校 |
||
| 設備・条件 | 都市ガス公営水道排水下水土地約49.33坪 京阪「橋本」駅まで徒歩4分 ゆとりの6DK 全居室6帖以上 トイレ2ヶ所 1坪サイズのお風呂 家庭菜園も楽しめます 即入居可 ●住宅ローンお任せ下さい。(自営可業・派遣社員・過去に住宅ローンが組めなかった方など) ●下記キャンペーン実施中 ①当社、《手数料》 キャンペーン実施中(弊社ホームページに多数あります。) ②《買い取り》 キャンペーン実施中 詳しくはお問い合わせください。 | ||
| 物件番号 | 68487801 | ||
| 自社物 | 状態 | 売出中 | |
| ※物件掲載内容と現況に相違がある場合は現況を優先と致します。 | |||
周辺情報
Loading...
