NEW
高槻市安岡寺町4丁目 第2-2号棟
仲介手数料0円
| 所在地 | 大阪府高槻市安岡寺町4丁目 |
|---|---|
| 交通 | JR東海道・山陽本線高槻駅 バス(寺谷町 乗11分 停歩4分) |
| 価格 | 3,780万円 |
|---|
| 物件種別 | 新築戸建 新築・未入居 |
|---|---|
| 築年月 | 2026/1 |
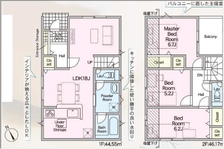
| 間取 | 3LDK |
| 面積 | 90.72m² |
| 土地 | 105.29m² |
| 構造 | 木造 |
| 階数 | 地上2階 |
| 物件番号 | 70799904 |
| 掲載期限日 | - |
| 都市ガス公営水道排水下水システムキッチン 床下収納 換気暖房乾燥機付ユニットバス シャワードレッサー シャワートイレ 全居室ペアガラス TVモニター付インターホン 人感センサー付玄関灯 防犯カメラ 駐車2台可 フラット35S利用可 ●住宅ローンお任せ下さい。(自営業・派遣社員・過去に住宅ローンが組めなかった方など) ●下記キャンペーン実施中 ①当社、《手数料》 キャンペーン実施中(弊社ホームページに多数あります。) ②《買い取り》 キャンペーン実施中 詳しくはお問い合わせください。 | |
間取り・写真



画像をクリックすると左に大きく表示されます



物件詳細情報
| 価格 | 3,780万円 | 間取 | 3LDK |
|---|---|---|---|
| 物件種別 | 新築戸建 | ||
| 所在地 | 大阪府高槻市安岡寺町4丁目 高槻市安岡寺町4丁目 第2-2号棟 |
||
| 交通 | JR東海道・山陽本線高槻駅 バス(寺谷町 乗11分 停歩4分) |
||
| 築年月 | 2026/1 | 新築/中古 | 新築・未入居 |
| 建物面積 | 90.72m² | 計測方式 | 壁芯 |
| バルコニー | 向き | ||
| 建物階数 | 地上2階 | 部屋階数 | |
| 部屋/区画番号 | 総戸/区画数 | 全2棟 | |
| 建物構造 | 木造 | ||
| 駐車場 | 駐車場付き | 取引態様 | 仲介 |
| 引渡/入居時期 | 相談 | 現況 | 未完成 |
| 地目 | 宅地 | 用途地域 | 第一種低層住居専 |
| 都市計画 | 市街化区域 | 地勢 | |
| 土地面積 | 105.29m² | 土地面積計測方式 | 公簿 |
| 建ぺい率 | 50% | 容積率 | 100% |
| 土地権利 | 所有権 | 接道状況 | |
| 接道方向1 | 北東 | 接道間口1 | |
| 接道種別1 | 接道幅員1 | 4m | |
| 周辺環境 |
北清水小学校 第九中学校 |
||
| 設備・条件 | 都市ガス公営水道排水下水システムキッチン 床下収納 換気暖房乾燥機付ユニットバス シャワードレッサー シャワートイレ 全居室ペアガラス TVモニター付インターホン 人感センサー付玄関灯 防犯カメラ 駐車2台可 フラット35S利用可 ●住宅ローンお任せ下さい。(自営業・派遣社員・過去に住宅ローンが組めなかった方など) ●下記キャンペーン実施中 ①当社、《手数料》 キャンペーン実施中(弊社ホームページに多数あります。) ②《買い取り》 キャンペーン実施中 詳しくはお問い合わせください。 | ||
| 物件番号 | 70799904 | ||
| 自社物 | 状態 | 売出中 | |
| ※物件掲載内容と現況に相違がある場合は現況を優先と致します。 | |||
周辺情報
Loading...
