NEW
枚方市長尾峠町 第3-20号棟
仲介手数料0円
| 所在地 | 大阪府枚方市長尾峠町 |
|---|---|
| 交通 | 京阪本線樟葉駅 バス(摂南大学北口 乗約15分 停歩8分) |
| 価格 | 3,080万円 |
|---|
| 物件種別 | 新築戸建 新築・未入居 |
|---|---|
| 築年月 | 2026/4 |
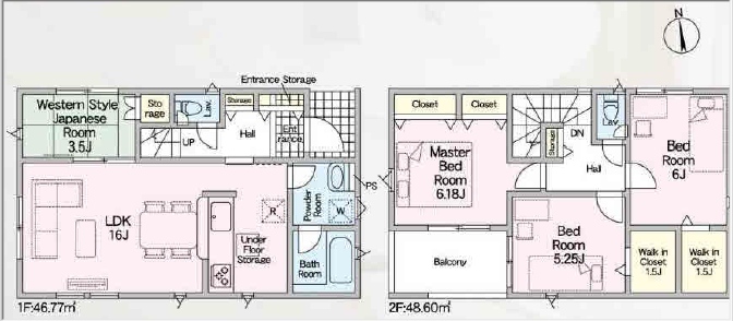
| 間取 | 4LDK |
| 面積 | 95.37m² |
| 土地 | 101.77m² |
| 構造 | 木造 |
| 階数 | 地上2階 |
| 物件番号 | 71577801 |
| 掲載期限日 | - |
| 都市ガス公営水道排水下水システムキッチン(浄水器付) 床下収納 浴室乾燥機 シャンプードレッサー 温水洗浄便座 複層ガラス 24時間換気システム ディンプルキー モニター付インターホン 火災警報器等設置済 駐車1台可 ●住宅ローンお任せ下さい。(自営業・派遣社員・過去に住宅ローンが組めなかった方など) ●下記キャンペーン実施中 ①当社、《手数料》 キャンペーン実施中(弊社ホームページに多数あります。) ②《買い取り》 キャンペーン実施中 詳しくはお問い合わせください。 | |
間取り・写真


画像をクリックすると左に大きく表示されます


物件詳細情報
| 価格 | 3,080万円 | 間取 | 4LDK |
|---|---|---|---|
| 物件種別 | 新築戸建 | ||
| 所在地 | 大阪府枚方市長尾峠町 枚方市長尾峠町 第3-20号棟 |
||
| 交通 | 京阪本線樟葉駅 バス(摂南大学北口 乗約15分 停歩8分) |
||
| 築年月 | 2026/4 | 新築/中古 | 新築・未入居 |
| 建物面積 | 95.37m² | 計測方式 | 壁芯 |
| バルコニー | 向き | ||
| 建物階数 | 地上2階 | 部屋階数 | |
| 建物構造 | 木造 | ||
| 駐車場 | 駐車場付き | 取引態様 | 仲介 |
| 引渡/入居時期 | 相談 | 現況 | 未完成 |
| 地目 | 宅地 | 用途地域 | 第一種住居 |
| 都市計画 | 市街化区域 | 地勢 | 平坦 |
| 土地面積 | 101.77m² | 土地面積計測方式 | 公簿 |
| 建ぺい率 | 60% | 容積率 | 200% |
| 土地権利 | 所有権 | 接道状況 | |
| 周辺環境 |
長尾小学校 長尾中学校 |
||
| 設備・条件 | 都市ガス公営水道排水下水システムキッチン(浄水器付) 床下収納 浴室乾燥機 シャンプードレッサー 温水洗浄便座 複層ガラス 24時間換気システム ディンプルキー モニター付インターホン 火災警報器等設置済 駐車1台可 ●住宅ローンお任せ下さい。(自営業・派遣社員・過去に住宅ローンが組めなかった方など) ●下記キャンペーン実施中 ①当社、《手数料》 キャンペーン実施中(弊社ホームページに多数あります。) ②《買い取り》 キャンペーン実施中 詳しくはお問い合わせください。 | ||
| 物件番号 | 71577801 | ||
| 自社物 | 状態 | 売出中 | |
| ※物件掲載内容と現況に相違がある場合は現況を優先と致します。 | |||
周辺情報
Loading...
