TOP > 物件検索 > 物件検索結果 > 交野市星田1丁目
NEW

交野市星田1丁目

仲介手数料0円
所在地 大阪府交野市星田1丁目
交通 JR片町線星田駅 徒歩5分
価格 2,980万円
物件種別 中古戸建 中古
築年月 2002/6
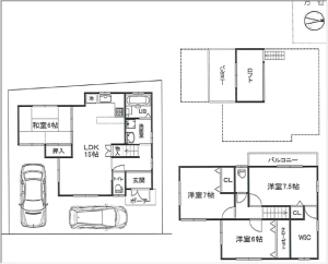
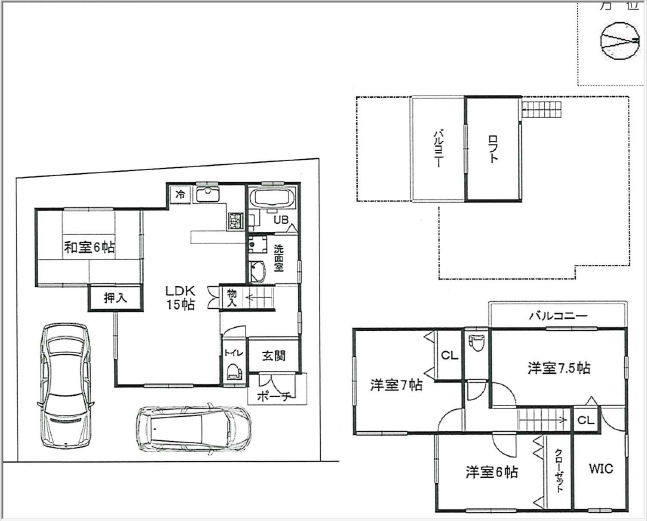
間取 4LDK
面積 108.82m²
土地 100.37m²
構造 木造
階数 地上3階
物件番号 71717118
掲載期限日 -
都市ガス公営水道排水下水JR学研都市線「星田」駅前開発 商業施設多数あり 4LDK+ロフト 令和7年10月リフォーム済●システムキッチン新調●洗面化粧台新調●ウォシュレット新調●クロス貼替●CF貼替●畳・襖・和室建具●ハウスクリーニング 駐車2台可  ●住宅ローンお任せ下さい。(自営業・派遣社員・過去に住宅ローンが組めなかった方など) ●下記キャンペーン実施中 ①当社、《手数料》 キャンペーン実施中(弊社ホームページに多数あります。) ②《買い取り》 キャンペーン実施中 詳しくはお問い合わせください。

間取り・写真

画像をクリックすると左に大きく表示されます

物件詳細情報

価格 2,980万円 間取 4LDK
物件種別 中古戸建
所在地 大阪府交野市星田1丁目
交野市星田1丁目
交通 JR片町線星田駅 徒歩5分
築年月 2002/6 新築/中古 中古
建物面積 108.82m² 計測方式 壁芯
バルコニー 向き
建物階数 地上3階  部屋階数
建物構造 木造
駐車場  駐車場付き 取引態様 仲介
引渡/入居時期 即時 現況 空家
地目 宅地 用途地域 第一種住居
都市計画 市街化区域 地勢 平坦
土地面積 100.37m² 土地面積計測方式 公簿
建ぺい率 60% 容積率 200%
土地権利 所有権 接道状況
接道方向1 北東 接道間口1
接道種別1 接道幅員1 4.8m
周辺環境 星田小学校 第三中学校
設備・条件 都市ガス公営水道排水下水JR学研都市線「星田」駅前開発 商業施設多数あり 4LDK+ロフト 令和7年10月リフォーム済●システムキッチン新調●洗面化粧台新調●ウォシュレット新調●クロス貼替●CF貼替●畳・襖・和室建具●ハウスクリーニング 駐車2台可  ●住宅ローンお任せ下さい。(自営業・派遣社員・過去に住宅ローンが組めなかった方など) ●下記キャンペーン実施中 ①当社、《手数料》 キャンペーン実施中(弊社ホームページに多数あります。) ②《買い取り》 キャンペーン実施中 詳しくはお問い合わせください。
物件番号 71717118
自社物 状態 売出中
※物件掲載内容と現況に相違がある場合は現況を優先と致します。

周辺情報

Loading...
問合せ物件名必須 ※問合せ物件名は変更しないでください
ご希望の内容
お名前必須
メールアドレス必須

※携帯電話でドメイン指定受信を設定されている場合は、「@e-athome.jp」からのメールを受け取れるよう設定をお願いいたします。

電話番号
ご希望の連絡方法
ご意見・ご要望

通常2営業日以内に返信を行っております。
返信がない場合は、メールが届いていない可能性がありますので、メールアドレスをご確認の上、再度送信いただくかお電話にてお問い合わせ下さい。