TOP > 物件検索 > 物件検索結果 > 高槻市西冠1丁目
NEW

高槻市西冠1丁目

所在地 大阪府高槻市西冠1丁目
交通 阪急京都本線高槻市駅 徒歩約26分
価格 3,280万円
物件種別 新築戸建 新築・未入居
築年月 2026/1
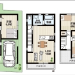
間取 3LDK
面積 104.67m²
土地 56.74m²
構造 木造
階数 地上3階
物件番号 71903365
掲載期限日 -
都市ガス公営水道排水下水南向き キッチンにカップボード標準装備 2階から玄関のドアの開閉ができる電子ユニット付 2階が水廻りのため家事動線良好 トイレ2ヶ所 ウォークインクローゼット 全居室6帖以上 駐車1台可 駐車1台可 ●住宅ローンお任せ下さい。(自営業・派遣社員・過去に住宅ローンが組めなかった方など) ●下記キャンペーン実施中 ①当社、《手数料》 キャンペーン実施中(弊社ホームページに多数あります。) ②《買い取り》 キャンペーン実施中 詳しくはお問い合わせください。 

間取り・写真

画像をクリックすると左に大きく表示されます

物件詳細情報

価格 3,280万円 間取 3LDK
物件種別 新築戸建
所在地 大阪府高槻市西冠1丁目
高槻市西冠1丁目
交通 阪急京都本線高槻市駅 徒歩約26分
築年月 2026/1 新築/中古 新築・未入居
建物面積 104.67m² 計測方式 壁芯
バルコニー 向き
建物階数 地上3階  部屋階数
建物構造 木造
駐車場  駐車場付き 取引態様 仲介
引渡/入居時期 即時 現況 空家
地目 宅地 用途地域 第二種中高層住居専用
都市計画 市街化区域 地勢 平坦
土地面積 56.74m² 土地面積計測方式 公簿
建ぺい率 60% 容積率 188%
土地権利 所有権 接道状況
接道方向1 接道間口1
接道種別1 接道幅員1 約4.7m
周辺環境 西大冠小学校 城南中学校
設備・条件 都市ガス公営水道排水下水南向き キッチンにカップボード標準装備 2階から玄関のドアの開閉ができる電子ユニット付 2階が水廻りのため家事動線良好 トイレ2ヶ所 ウォークインクローゼット 全居室6帖以上 駐車1台可 駐車1台可 ●住宅ローンお任せ下さい。(自営業・派遣社員・過去に住宅ローンが組めなかった方など) ●下記キャンペーン実施中 ①当社、《手数料》 キャンペーン実施中(弊社ホームページに多数あります。) ②《買い取り》 キャンペーン実施中 詳しくはお問い合わせください。 
物件番号 71903365
自社物 状態 売出中
※物件掲載内容と現況に相違がある場合は現況を優先と致します。

周辺情報

Loading...
問合せ物件名必須 ※問合せ物件名は変更しないでください
ご希望の内容
お名前必須
メールアドレス必須

※携帯電話でドメイン指定受信を設定されている場合は、「@e-athome.jp」からのメールを受け取れるよう設定をお願いいたします。

電話番号
ご希望の連絡方法
ご意見・ご要望

通常2営業日以内に返信を行っております。
返信がない場合は、メールが届いていない可能性がありますので、メールアドレスをご確認の上、再度送信いただくかお電話にてお問い合わせ下さい。